Artificial lighting for public buildings and urban infrastructure – General performance requirements
1 Phạm vi áp dụng
Tiêu chuẩn này quy định các yêu cầu kỹ thuật cần tuân thủ trong tính toán thiết kế mới, xây dựng, cải tạo và kiểm tra đánh giá các hệ thống chiếu sáng nhân tạo ( ưu tiên cho sử dụng các nguồn sáng phóng điện và nguồn sáng LED ) để chiếu sáng các công trình công cộng và kỹ thuật hạ tầng
1.1 Hệ thống chiếu sáng các công trình công cộng và kỹ thuật hạ tầng bao gồm hệ thống chiếu sáng các đường giao thông, đường phố, đường hầm giao thông cho xe cơ gới, các nút giao thông, đường và đường hầm dành cho người đi bộ ; các đoạn đường đi qua khu dân cư, các hầm giao thông, các khu giao cắt, các trạm nghỉ, trạm xăng của đường cao tốc ; các khu trung tâm, các khu vực vui chơi công cộng, các quảng trường, công viên và vườn hoa, các công trình thể dục thể thao ngoài trời, các công trình kiến trúc, tượng đài tiêu biểu thuộc đô thị hoặc nông thôn ,
1.2 Các qui định trong tiêu chuẩn này không áp dụng trong thiết kế chiếu sáng các vườn đặc biệt (vườn thú, vườn bách thảo), ga tàu hoả và bến đợi, cảng hàng không cũng như chiếu sáng các công trình đặc biệt và chiếu sáng trang trí, quảng cáo
1.3 Tiêu chuẩn này thay thế cho các tiêu chuẩn :
| TCXDVN 259:2001 | Tiêu chuẩn thiết kế chiếu sáng nhân tạo đường, đường phố, quảng trường đô thị |
| TCXDVN 333:2005 | Chiếu sáng nhân tạo bên ngoài các công trình công cộng và kỹ thuật hạ tầng đô thị – Tiêu chuẩn thiết kế |
2 Tiêu chuẩn viện dẫn
| TCVN 4400:1987 | Tiêu chuẩn chiếu sáng – Thuật ngữ và định nghĩa |
| TCXDVN 259:2001 | Tiêu chuẩn thiết kế chiếu sáng nhân tạo đường, đường phố, quảng trường đô thị |
| TCXDVN 333:2005
QCVN 07-7:2016/BXD
TCVN………………..
TCVN……………….. |
Chiếu sáng nhân tạo bên ngoài các công trình công cộng và kỹ thuật đô thị – Tiêu chuẩn thiết kế
Quy chuẩn kỹ thuật quốc gia các công trình xây dựng – công trình chiếu sáng Tiêu chuẩn chiếu sáng đường hầm đô thị cho xe cơ giới và người đi bộ – tiêu chuẩn thiết kế” ( sẽ được công bố ) Tiêu chuẩn thiết kế chiếu sáng đường,đường phố và hầm giao thông đô thị sử dụng nguồn sáng LED ( sẽ được công bố ) |
| TCVN 5176:19900 | Chiếu sáng nhân tạo – Phương pháp đo độ rọi |
| CIE 115 -1995 | Recommendations for the lighting of roads for motor and pedestrian traffic. |
3 Giải thích từ ngữ
Các thuật ngữ sử dụng trong tiêu chuẩn này áp dụng theo tiêu chuẩn Việt nam TCVN 4400:1987 và TCXDVN 333:2005.
Ngoài ra trong tiêu chuẩn này còn áp dụng một số thuật ngữ sau:
3.1 Độ chói mặt đường trung bình
là độ chói tính trung bình trên mặt đường, ký hiệu Ltb, đơn vị đo cd/m2.
3.2 Hệ số đồng đều chung
là tỷ số giữa độ chói cực tiểu và độ chói trung bình trên mặt đường, ký hiệu Uo.
3.3 Hệ số đồng đều dọc
là tỷ số giữa độ chói cực tiểu và độ chói cực đại trên mặt đường theo phương dọc, ký hiệu Ul.
3.4 Hệ số đồng đều chung theo độ rọi
là tỷ số giữa độ rọi cực tiểu và độ rọi trung bình trên mặt đường, ký hiệu UoE.
3.5 Mức tăng ngưỡng
là mức tăng ngưỡng độ chói do chói loá mờ gây nên, ký hiệu TI.
3.6 Chói loá mờ
là hiện tượng loá làm suy giảm khả năng phân biệt khi có độ chói cao trong trường nhìn của mắt người.
4 Quy định chung
4.1 Hệ thống chiếu sáng các công trình công cộng và kỹ thuật hạ tầng phải bảo đảm:
– Các chỉ số định lượng và chất lượng chiếu sáng đạt được của hệ thống chiếu sáng, các thiết bị chiếu sáng tương ứng với đối tượng được chiếu sáng;
– Độ tin cậy của các thiết bị chiếu sáng trong quá trình hoạt động;
– Sự an toàn cho người vận hành và dân cư, an ninh và trật tự an toàn xă hội
– Thuận tiện điều khiển các hệ thống chiếu sáng và thiết bị chiếu sáng;
– Sử dụng năng lượng tiết kiệm và hiệu quả;
– Có hiệu quả về kinh tế, bao gồm kinh phí lắp đặt, vận hành, bảo dưỡng và thay thế.
4.2 Các thiết bị và vật liệu sử dụng trong các thiết bị chiếu sáng phải tương ứng với các yêu cầu trong các tiêu chuẩn kỹ thuật, đồng thời phải tương ứng với các điều kiện kỹ thuật, mạng lưới điện áp và các điều kiện môi trường xung quanh.
4.2.1 Các thiết bị chiếu sáng được sử dung cần phải có hiệu quả sử dụng điện năng cao, độ bền và khả năng duy trì các đặc tính quang học trong điều kiện làm việc ngoài trời tốt – theo quy định trong bảng 1 và phải có cấp bảo vệ IP tối thiểu theo quy định trong bảng 2.
Bảng 1. Hệ số duy trì quang thông của đèn
| Chu kỳ bảo dưỡng đèn /(tháng ) | Cấp bảo vệ của đèn | ||||||||
| IP 2X | IP 5X | IP 6X | |||||||
| Phân loại môi trường | Phân loại môi trường | Phân loại môi trường | |||||||
| Đô thị lớn, khu công nghiệp nặng | Đô thị nhỏ, khu công nghiệp nhẹ | Nông thôn | Đô thị lớn, khu công nghiệp nặng | Đô thị nhỏ, khu công nghiệp nhẹ | Nông thôn | Đô thị lớn, khu công nghiệp nặng | Đô thị nhỏ, khu công nghiệp nhẹ | Nông thôn | |
| 12
18 24 36 |
0,53
0,48 0,45 0,42 |
0,62
0,58 0,56 0,53 |
0,82
0,80 0,79 0,78 |
0,89
0,87 0,84 0,76 |
0,90
0,88 0,86 0,82 |
0,92
0,91 0,90 0,88 |
0,91
0,90 0,88 0,83 |
0,92
0,91 0,89 0,87 |
0,93
0,92 0,91 0,90 |
Bảng 2 . Cấp bảo vệ IP tối thiểu của thiết bị chiếu sáng
| STT | Đặc điểm – phân loại môi trường làm việc | Cấp bảo vệ tối thiểu |
| 1 | Đèn lắp đặt trong khu vực nông thôn | IP23 |
| 2 | Đèn lắp đặt trong đô thị vừa và nhỏ, khu công nghiệp nhẹ, khu nhà ở | IP 44 |
| 3 | Đèn lắp đặt trong đô thị lớn, khu công nghiệp nặng | Phần quang học : IP 54
Các phần khác : IP 44 |
| 4 | Đèn lắp đặt dưới độ cao 3m | IP 44 |
| 5 | Đèn lắp đặt trong hầm , trên thành cầu | IP 55 |
| 6 | Vị trí lắp đặt đèn có khả năng xẩy ra úng ngập | IP 67 |
| 7 | Đèn phải làm việc thường xuyên trong điều kiện ngập nước | IP 68 |
42.2 Thiết kế cấp điện cho hệ thống chiếu sáng phải tuân theo các tiêu chuẩn sau:
- 11 TCN 18 : 1984 : Quy phạm trang bị điện – Phần 1 : Quy định chung
- 11 TCN 19 : 1984 : Quy phạm trang bị điện – Phần 2: Hệ thống đường dây dẫn điện.
4.2.3Hệ thống chiếu sáng ( đèn , cột đèn , tủ điện ) cần được thiết kế đáp ứng các yêu cầu về an toàn và bảo vệ chống sét, tiếp đất theo các tiêu chuẩn:
- TCVN 4086 : 1985 Quy phạm an toàn lưới điện trong xây dựng
- TCVN 4756 : 1989 Quy phạm nối đất và nối không các thiết bị điện
4.2.4 Thiết bị chiếu sáng và các thiết bị đi kèm ( đèn, cột đèn, tủ điện ) phải có tính thẩm mỹ, phù hợp với cảnh quan môi trường và đáp ứng các tiêu chuẩn quy định trong lĩnh vực bảo vệ môi trường. Khi thiết kế chiếu sáng cho 1 đối tượng hay 1 khu vực cụ thể cần lưu ý đến đặc điểm và yêu cầu chiếu sáng của các khu vực phụ cận để tránh gây ra hiện tượng “ô nhiễm ánh sáng” đối với những khu vực này.
4.2.5 Hệ thống chiếu sáng nhân tạo bên ngoài các công trình công cộng và kĩ thuật hạ tầng ( trừ các công trình thể dục thể thao ngoài trời ) có thể là một thành phần cấu thành của hệ thống chiếu sáng công cộng , được cấp nguồn và điều khiển theo mạng điều khiển chung của hệ thống chiếu sáng công cộng , hoặc cũng có thể là một hệ thống công trình được quản lý và vận hành một cách độc lập . Hệ thống chiếu sáng phục vụ luyện tập và thi đấu tại các công trình thể dục thể thao ngoài trời cần được quản lý vận hành 1 cách độc lập.
4.3 Chiếu sáng các cảnh quan kiến trúc vào ban đêm cần phải thực hiện theo quy hoạch và tập trung vào các loại công trình:
– Các tổ hợp nhà và công trình, vườn cây và bể phun nước, quảng trường và đường phố, bờ sông, công viên và những nơi nghỉ ngơi công cộng;
– Các công trình và tượng đài cấp địa phương và quốc gia, các điểm kiến trúc – nghệ thuật và lịch sử – văn hoá ;
4.4 Thiết kế chiếu sáng kiến trúc bên ngoài các công trình và chiếu sáng quảng cáo phải được sự chấp thuận của cơ quan quản lý có thẩm quyền.
4.5 Các hệ thống chiếu sáng bao gồm:
– Chiếu sáng đường giao thông, đường phố, cầu, đường hầm và các nút giao thông cho xe có động cơ;
– Chiếu sáng các đường, cầu và đường hầm cho người đi bộ và đi xe thô sơ;
– Chiếu sáng các trung tâm đô thị, quảng trường và các khu vực vui chơi công cộng;
– Chiếu sáng các công viên và vườn hoa;
– Chiếu sáng công trình đặc biệt (công trình có giá trị lịch sử, văn hoá, nghệ thuật, tượng đài, và các công trình tương tự);
– Chiếu sáng các điểm đỗ giao thông công cộng ngoài trời;
– Chiếu sáng các công trình thể dục thể thao ngoài trời.
5 Yêu cầu kỹ thuật
5.1 Chiếu sáng đường, đường phố cho xe có động cơ và quảng trường
5.1.1 Yêu cầu chung
5.1.1.1. Phân cấp đường, đường phố và quảng trường theo yêu cầu chiếu sáng được quy định theo:
QCVN 01:2008/BXD: Quy chuẩn quốc gia về quy hoạch xây dựng
QCVN 07-4:2016/BXD: Quy chuẩn quốc gia về các công trình hạ tầng kỹ thuật/Công trình giao thông.
5.1.1.2 Tiêu chí chiếu sáng các cấp đường, đường phố trong được quy định theo QCVN 07-7:2016/BXD: Quy chuẩn quốc gia về các công trình hạ tầng kỹ thuật/Công trình chiếu sáng.
5.1.1.3 Khi thiết kế phần hệ thống điện của hệ thống chiếu sáng đường, đường phố, phải tuân thủ QCVN 07-5:2016/BXD: Quy chuẩn quốc gia về các công trình hạ tầng kỹ thuật/Công trình cấp điện.
5.1.1.4 Hệ thống chiếu sáng đường, đường phố cho xe có động cơ phải đạt được yêu cầu sau:
– Bảo đảm cho người điều khiển phương tiện giao thông lưu hành an toàn;
– Bảo đảm cho người đi bộ nhận biết sự nguy hiểm, tự định hướng, nhận biết được những chướng ngại nguy hiểm, người đi bộ khác và chọn cho mình hướng đi an toàn;
– Tạo cảnh quan môi trường tiện nghi đối với thị giác người và hấp dẫn khách về ban đêm, đặc biệt tại khu trung tâm và các khu thương mại lớn.
5.1.1.5 Thiết bị của hệ thống chiếu sáng đường, đường phố phải phù hợp, hài hòa với cảnh quan không gian thiết kế,
5.1.2 Các yêu cầu chiếu sáng
5.1.2.1 Hệ thống chiếu sáng đường, đường phố cho xe có động cơ phải đạt được các yêu cầu sau đây:
a) Phải tạo được một mức độ chói nhất định, cần thiết để mắt người điều khiển phương tiện giao thông nhận biết được các chi tiết nhỏ ở độ tương phản thấp ngay cả khi phương tiện giao thông di chuyển với tốc độ cao, tương ứng với tình huống giao thông;
b) Độ chói trên mặt đường phải đồng đều theo cả phương dọc và đồng đều chung, hạn chế các khoảng sáng-tối có thể tiềm ẩn các mối nguy hiểm;
c) Không gây loá mắt người điều khiển phương tiện giao thông.
d) Khi thiết kế chiếu sáng trên các trục đường vận chuyển tốc độ lớn, tại điểm kết thúc phải tạo ra các vùng đệm.
e) Để thực hiện chức năng hướng dẫn nhìn và dẫn hướng quang học, hệ thống chiếu sáng phải đảm bảo các yêu cầu sau đây:
– Vị trí của đèn chiếu sáng phải được bố trí sao cho người điều khiển phương tiện phân biệt rõ các biển báo hiệu
– Các đèn phải được đặt theo hàng, có tác dụng như cọc tiêu để người điều khiển phương tiện tăng khả năng định hướng tốt
5.1.2.2 Các giá trị tối thiểu hoặc tối đa theo các yêu cầu chiếu sáng phụ thuộc vào sự phân cấp đường theo loại đường, đặc điểm giao thông (lưu lượng và loại phương tiện lưu hành trên đường) và đặc điểm của đường (có phân làn hay không, các biển báo, dấu hiệu chỉ dẫn và tín hiệu điều khiển giao thông…).
5.1.2.3 Phân cấp đường, đường phố cho xe có động cơ theo yêu cầu chiếu sáng được quy định trong Bảng 3
Bảng 3 – Phân cấp chiếu sáng đường, đường phố giao thông
| STT | Loại đường và đặc điểm đường giao thông | Cấp chiếu sáng |
| 1 | Đường cao tốc có các làn đường riêng biệt, không có các giao cắt đồng mức.
Mật độ giao thông và mức độ phức tạp của tổ chức giao thông trên tuyến đườnga: |
|
| Cao | A | |
| Trung bình | B | |
| Thấp | C | |
| 2 | Đường cao tốc, đường hai chiều.
Hệ thống điều khiển giao thôngb và mức độ phân táchc giữa các loại phương tiện tham gia giao thông khác nhaud: |
|
| Không tốt | A | |
| Tốt | B | |
| 3 | Các tuyến đường quan trọng, đường hướng tâm, đường liên khu vực.
Hệ thống điều khiển giao thông và mức độ phân tách giữa các loại phương tiện tham gia giao thông khác nhau: |
|
| Không tốt | B | |
| Tốt | C | |
| 4 | Các tuyến đường khác, đường khu vực, đường trục chính vào các khu dân cư.
Hệ thống điều khiển giao thông và mức độ phân tách giữa các loại phương tiện tham gia giao thông khác nhau: |
|
| Không tốt | D | |
| Tốt | E | |
| a Mức độ phức tạp của tổ chức giao thông trên tuyến đường được xác định theo các yếu tố: số làn xe chạy, đường dốc, chỉ dẫn tách nhập làn đường, các loại biển báo và đèn tín hiệu giao thông.
b Hệ thống điều khiển giao thông bao gồm: đèn tín hiệu giao thông, biển báo giao thông, biển chỉ dẫn, vạch kẻ sơn đường. Điều khiển giao thông được coi là không tốt khi không có các hệ thống trên hoặc không đầy đủ và ngược lại. c Sự phân tách giữa các chủng loại phương tiện tham gia giao thông được hiểu là các phương tiện khác nhau được quy định bắt buộc lưu thông ở các làn đường khác nhau hoặc tuyến đường cấm lưu thông đối với một hoặc một số loại phương tiện giao thông. d Các loại phương tiện tham gia giao thông khác nhau: xe du lịch, xe tải, xe buýt và xe chở khách, xe máy, xe đạp và các phương tiện thô sơ khác. |
||
Bảng phân cấp chiếu sáng quảng trường
| Quảng trường | – Quảng trường chính thành phố | A | ||
| – Quảng trường giao thông và trước cầu | A | |||
| – Quảng trường trước ga tàu | A | |||
| – Quảng trường đầu mối các công trình giao thông | A | |||
| – Quảng trường trước các công trình công cộng và các địa điểm tập trung công cộng | B |
5.1.2.4 Hệ thống chiếu sáng đường, đường phố cho xe có động cơ và quảng trường phải bảo đảm các giá trị định tính và định lượng chiếu sáng quy định bởi các đại lượng sau đây:
– Độ chói trung bình của mặt đường, ký hiệu Ltb;
– Hệ số đồng đều độ chói chung của mặt đường, ký hiệu Uo;
– Hệ số đồng đều độ chói theo phương dọc, ký hiệu Ul;
– Độ rọi trung bình của mặt đường, ký hiệu Etb;
– Chỉ số hạn chế loá mờ theo mức tăng ngưỡng, ký hiệu TI.
5.1.2.5 Các giá trị định tính và định lượng chiếu sáng tối thiểu cho trong Bảng 4
Bảng 4- Yêu cầu chiếu sáng các loại đường, đường phố và quảng trường
| STT | Cấp chiếu sáng | Ltb (cd/m2) |
Uo | Ul | TI (%) |
| 1 | A | ≥ 2 | ≥ 0,4 | ≥ 0,7 | ≤ 10 |
| 2 | B | ≥ 1,5 | ≥ 0,4 | ≥ 0,7 | ≤ 10 |
| 3 | C | ≥ 1,0 | ≥ 0,4 | ≥ 0,5 | ≤ 15 |
| 4 | D | ≥ 0,75 | ≥ 0,4 | k/aa | ≤ 20 |
| 5 | E | ≥ 0,5 | ≥ 0,35 | k/a | ≤ 20 |
| a k/a: không áp dụng | |||||
5.1.2.6 Mật độ công suất để chiếu sáng mặt đường tối đa theo mét dài đối với các đường có chiều rộng khác nhau và trên mỗi mét vuông diện tích quảng trường cho trong Bảng 5.
Bảng 5 – Yêu cầu mật độ công suất tối đa để chiếu sáng đường, quảng trường
| Cấp chiếu sáng | A | B | C | D | E |
| Độ chói trung bình mặt đường (cd/m2) | 2 | 1,5 | 1 | 0,75 | 0,5 |
| Mật độ công suất tối đa (W/m) với các đường có chiều rộng: | |||||
| Nhỏ hơn 7 m
Từ 7 m đến 14 m Từ 14 m đến 21 m |
10
12 17 |
7
8,5 12 |
5
6 8,5 |
4
5 – |
3,5
4 – |
5.2 Chiếu sáng các nút giao thông
5.2.1 Tại các nút giao thông, yêu cầu đối với hệ thống chiếu sáng phải:
– Không gây chói lóa.
– Không bố trí cột tại những vị trí nguy hiểm khi bảo dưỡng.
– Đảm bảo tầm nhìn xa từ 200 – 300m ngay cả trong điều kiện thời tiết xấu.
– Tránh sử dụng quá nhiều đèn gây lẫn lộn cho người sử dụng, nên thiết kế các cột đèn có độ cao lớn lắp các đèn có quang thông lớn.
5.2.2 Tại các ngã tư giao nhau với đường sắt, cần chiếu sáng tối thiểu 30m hai bên chắn tàu, chú ý tránh làm lẫn lộn giữa các đèn chiếu sáng với đèn tín hiệu đường sắt.
5.2.3 Ở các đường gần sân bay, hệ thống chiếu sáng phải được thiết kế sao cho tránh gây nhầm lẫn giữa đèn chiếu sáng với hệ thống đèn tín hiệu cất, hạ cánh của sân bay.
5.2.4 Chiếu sáng các nút giao thông phải tạo điều kiện để người điều khiển phương tiện giao thông phát hiện được cả sơ đồ nút giao thông và các hoạt động giao thông. Tổ chức chiếu sáng các nút giao thông, nhất là các nút phức tạp (nút giao thông phân tầng, các nút chữ T, chữ Y, so le, hình dĩa, nút có đảo tam giác…) phải bảo đảm cho người điều khiển phương tiện giao thông có thể nhìn thấy vị trí các mép vỉa hè và các mốc đường, các chiều của đường, sự có mặt của các phương tiện tham gia giao thông, người đi bộ hoặc các chướng ngại, sự chuyển động của tất cả các loại phương tiện gần nút giao thông.
5.2.5 Tại các nút giao thông:
– Độ chói mặt đường yêu cầu trên toàn nút giao thông phải lớn hơn độ chói trên mặt các đường chính dẫn tới nút từ 10% đến 20%;
– Hệ thống đèn chiếu sáng không được gây chói loá cho người điều khiển phương tiện giao thông.
5.2.6 Vị trí cột đèn báo ở nút giao thông phải:
– Có khả năng dẫn hướng tốt cho người điều khiển phương tiện giao thông;
– Có thể nhìn thấy từ khoảng cách từ 200 đến 300m, cả trong điều kiện thời tiết xấu;
– Đảm bảo điều kiện an toàn khi bảo dưỡng.
5.2.7 Giá trị độ rọi trung bình, độ đồng đều độ rọi trên mặt đường tại nút giao thông và mật độ công suất chiếu sáng tối đa trên một mét vuông diện tích tại nút giao thông cho trong Bảng 6.
Bảng 6 – Yêu cầu chiếu sáng các nút giao thông
| Cấp chiếu sáng tuyến đường chính | Độ rọi trung bình Etb (lx) | Độ đồng đều độ rọi UoE | Mật độ công suất tối đa (W/m2) |
| A | 30 | 0,4 | 1,5 |
| B | 20 | 0,4 | 1,0 |
| C | 10 | 0,4 | 0,5 |
| D | 7 | 0,4 | 0,35 |
| E | 5 | 0,4 | 0,25 |
5.3 Chiếu sáng cho các cầu và đường trên cao
5.3.1 Chiếu sáng trên các cầu có quy mô vừa và nhỏ phải tương đồng với chiếu sáng của phần đường nối tiếp với cầu.
5.3.2 Nếu mặt cầu và đường trên cao nhỏ hơn mặt đường tiếp giáp thì phải đảm bảo độ rọi mặt đứng tối thiểu là 15 lx tại lan can cầu và dải phân cách; tại lối lên và xuống phải bố trí đèn.
5.3.3 Phải dùng những thiết bị chiếu sáng (loại đèn) không gây chói lóa cho người điều khiển phương tiện giao thông.
5.4 Chiếu sáng các đường gần sân bay, đường xe lửa, bến cảng
5.4.1 Tại các khu vực gần sân bay, hệ thống chiếu sáng đường không được gây nhầm lẫn với hệ thống đèn tín hiệu cất, hạ cánh của sân bay.
5.4.2 Chiếu sáng đường tại nút giao với đường sắt phải tuân theo các quy định sau:
– Phải đảm bảo cho người điều khiển phương tiện giao thông khi dừng lại đủ tầm nhìn phân biệt rõ xe cộ, lối đi, chướng ngại vật và người bộ hành;
– Phải đảm bảo độ rọi trên mặt đứng để phân biệt rõ các bảng thông tin tín hiệu. Màu sắc ánh sáng của đèn chiếu sáng phát ra không được lẫn với màu của đèn tín hiệu;
– Trong phạm vi 30 m về hai phía của nút giao, mặt đường phải có độ chói và hệ số đồng đều độ chói cao hơn phần mặt đường kế cận 10%.
5.5 Chiếu sáng các đường hầm cho xe có động cơ
5.5.1. Phân cấp đường giao thông cho xe cơ giới trên đường hầm theo yêu cầu chiếu sáng được quy định theo QCVN 01:2008/BXD – Quy chuẩn quốc gia về quy hoạch xây dựng và QCVN 07-4:2016/BXD – Quy chuẩn quốc gia về các công trình hạ tầng kỹ thuật/Công trình giao thông.
5.5.2. Khi thiết kế phải tuân thủ QCVN 07-5:2015/BXD – Quy chuẩn kỹ thuật quốc gia về công trình cấp điện.
5.5.3. Tiêu chí chiếu sáng các cấp đường giao thông cho xe cơ giới trên đường hầm phải tuân thủ theo QCVN 07-7:2016/BXD – Quy chuẩn quốc gia về các công trình hạ tầng kỹ thuật/Công trình chiếu sáng.
- Phân cấp chiếu sáng đường hầm
Phân cấp chiếu sáng đường hầm phải dựa trên các đặc điểm sử dụng đường hầm đã biết (đối với đường hầm hiện có) hoặc dự kiến sử dụng (đối với đường hầm mới).
Các yếu tố đặc điểm sử dụng đường hầm phải quan tâm là:
– lưu lượng giao thông (theo cường độ dòng xe, xe/giờ);
– đặc điểm giao thông (dành riêng cho xe cơ giới hay hỗn hợp);
– khả năng chỉ dẫn trực quan.
Bốn cấp chiếu sáng đường hầm được phân loại theo đặc điểm giao thông (chỉ có xe cơ giới hay hỗn hợp) và lưu lượng giao thông trên Hình 1.

- Yêu cầu chiếu sáng các vùng khác nhau của đường hầm
Để bảo đảm điều kiện nhìn rõ phù hợp với sự thích ứng ánh sáng của mắt người điều khển phương tiện giao thông, đường hầm được chia thành sáu vùng có yêu cầu chiếu sáng khác nhau, gồm bốn vùng trong hầm và hai vùng ngoài hầm:
- Vùng tiếp cận hầm (ngoài hầm); (2) Vùng cửa vào hầm; (3)Vùng chuyển tiếp; (4) Vùng trong hầm; (5) Vùng cửa ra hầm; (6) Vùng thoát hầm (ngoài hầm).
Phân chia các vùng cần chiếu sáng và phân bố độ chói yêu cầu của các vùng tương ứng của hầm giao thông cơ giới thể hiện trên Hình 2.

5.5.6. Khi thiết kế chiếu sáng trên các trục đường hầm vận chuyển tốc độ lớn, tại điểm vào hầm và ra khỏi hầm phải tạo ra các vùng đệm, vùng chuyển tiếp
- Yêu cầu chiếu sáng mặt đường vùng trong hầm,
Giá trị trung bình của độ chói mặt đường vùng trong hầm, ký hiệu LTR, không được nhỏ hơn giá trị cho trong Bảng 7 tương ứng với cấp chiếu sáng đường hầm.
Bảng 7 – Yêu cầu chiếu sáng mặt đường vùng trong hầm (LTR)
|
Cấp chiếu sáng |
Độ chói trung bình LTR , cd / m2 theo tốc độ giới hạn, km/h |
Độ đồng đều chung, Uo | Độ đồng đều dọc, U1 | |||
|
50-70 |
80-100
|
110-120 | ||||
| 4 | 3 | 6 | 10 | ≥0.4 | ≥0.7 | |
| 3 | 2 | 4 | 6 | ≥0.4 | ≥0.6 | |
| 2 | 1,5 | 2 | 4 | ≥0.4 | ≥0.6 | |
| 1 | – | 0,5 | 1,5 | – | – | |
5.5.8 Trên các đường hầm dài và phức tạp bắt buộc phải có đồng thời các hệ thống chiếu sáng đường, hệ thống chiếu sáng khẩn cấp, hệ thống chiếu sáng dẫn hướng và phải được vận hành suốt 24 giờ/ngày và được cung cấp (nuôi) bằng hệ thống điện riêng biệt , đảm bảo hoạt động liên tục, kéo dài ít nhất 2 giờ trong điều kiện xảy ra sự cố.
5.5.9 Không gian đường hầm ở lối vào và lối ra phải đảm bảo độ chói lớn hơn 2 lần độ chói không gian bên trong đường hầm (LTR) và được giảm dần tại vùng chuyển tiếp,
Ghi chú: Các hầm có độ dài ngắn dưới 200 m chỉ cần chiếu sáng đảm bảo đều các giá trị (LTR)trong toàn đường hầm không cần tuân thủ như quy định mục 5.5.9
5.5.10 Chiếu sáng mặt tường đường hầm
Để người điều khiển phương tiện giao thông có thể điều khiển phương tiện giao thông an toàn và thuận lợi trong hầm cần tạo ra môi trường quan sát tốt có chú ý tới độ cân bằng sáng không chỉ của mặt đường mà còn mặt tường và trần hầm
Độ chói mặt tường hầm là giá trị so sánh với độ chói bề mặt đường bình quân trong phạm vi độ cao 1m tính từ mặt đường hầm được quy định trong Bảng 8:
Bảng 8 – Yêu cầu chiếu sáng mặt tường hầm
| Hoàn thiện mặt tường hầm | Bề mặt đường hầm | Tỷ lệ độ chói giữa mặt đường hầm và mặt tường hầm | |
| Có ván lót |
Bê tông |
Trường hợp vệ đường tương đối hẹp | 1:1,5 |
| Ngoài trường hợp trên | 1:1 | ||
| Nhựa đường | 1:1 | ||
| Không có ván lót | - | 1:0,6 | |
5.5.11 Để thực hiện chức năng dẫn hướng nhìn và dẫn hướng quang học, hệ thống chiếu sáng phải đảm bảo các yêu cầu sau đây:
– Vị trí của đèn chiếu sáng phải được bố trí sao cho người điều khiển phương tiện phân biệt rõ các biển báo hiệu
– Các đèn phải được đặt theo hàng, có tác dụng như cọc tiêu để người điều khiển phương tiện tăng khả năng định hướng.
5.5.12 Bố trí đèn trong đường hầm
– Chiều cao lắp đèn: Để đảm bảo tốt sự phân bố độ chói mặt đường đồng đều đồng thời để giảm thiểu ảnh hưởng do độ lóa của đèn chiếu sáng, các đèn nên bố trí trên trần hầm hoặc trên độ cao không thấp hơn 5m so với mặt đường hầm
– Việc bố trí đèn tuân theo nguyên tắc bố trí đối diện hoặc sole nhưng có thể bố trí một bên hoặc trung tâm tùy theo tình hình như độ rộng hẹp…theo Hình 3 dưới đây:

5.6 Chiếu sáng vỉa hè, đường, cho xe thô sơ và người đi bộ
5.6.1 Chiếu sáng vỉa hè và đường cho xe thô sơ và người đi bộ nhằm giúp phát hiện được các chướng ngại vật và những mối nguy hiểm trên đường và nhận diện người đang tiến lại gần. Do đó cần chiếu sáng cả trên mặt ngang, mặt đứng và không gây chói loá mắt.
5.6.2 Yêu cầu chiếu sáng trên mặt đường phải đạt các trị số trung bình và tối thiểu quy định tại Bảng 9 và độ đồng đều trung bình trên toàn mặt đường Uo không nhỏ hơn 0,25.
Bảng 9 – Trị số độ rọi ngang trên mặt hè phố, đường xe thô sơ và người đi bộ
| Số
TT |
Loại đường | Độ rọi ngang En (lx) | Mật độ công suất tối đa, (W/m) | |
| Trung bình | Tối thiểu | |||
| 1 | Hè phố, đường cho xe thô sơ và người đi bộ tại các tuyến trung tâm , khu vực thương mại, khu vui chơi giải trí, có mật độ giao thông cao, tình hình an ninh trật tự phức tạp | 10 | 5 | 3,5 |
| 2 | Hè phố và đường cho xe thô sơ tại các tuyến khu vực có mật độ giao thông trung bình | 7 | 3 | 2,5 |
| 3 | Hè phố tại các nơi có mật độ giao thông thấp | 3 | 1 | 2 |
5.7 Chiếu sáng đường, cầu và đường hầm dành cho người đi bộ
5.7.1 Yêu cầu chiếu sáng trên mặt đường và khu vực dành cho người đi bộ quy định trong Bảng 10
Bảng 10 – Yêu cầu chiếu sáng mặt đường các khu vực dành cho người đi bộ
| STT | Đối tượng chiếu sáng | Độ rọi ngang En (lx) | Mật độ công suất tối đa, (W/m) | |
| Trung bình | Tối thiểu | |||
| 1 | Đường và khu đi bộ ở vùng trung tâm đô thị, gần các câu lạc bộ giải trí, khu vực mua sắm, có mật độ giao thông cao , tình hình an ninh trật tự phức tạp | 10 | 5 | 3,5 |
| 2 | Đường và khu đi bộ ở vùng ngoại thành có mật độ giao thông ở mức trung bình | 7 | 3 | 2,5 |
| 3 | Đường và khu đi bộ ở vùng nông thôn, thị trấn, trong các khu nhà ở , mật độ giao thông thấp, tình hình an ninh trật tự tốt | 3 | 1 | 2 |
5.7.2 Độ rọi ngang trung bình và độ rọi ngang tối thiểu trên cầu và trong đường hầm dành cho người đi bộ quy định trong Bảng -11.
5.7.3 Đối với đường hầm cho người đi bộ, đèn chiếu sáng phải có góc bảo vệ không nhỏ hơn 15°, được bố trí sao cho tất cả các bề mặt của hầm, đặc biệt là các mặt đứng được chiếu sáng.
5.7.4 Hệ thống điều khiển chiếu sáng đường hầm phải là hệ thống điều khiển tự động sử dụng rơ le thời gian hoặc rơ le quang điện được thiết kế để có thể điều khiển thay đổi mức độ chiếu sáng đáp ứng tiêu chuẩn quy định theo thời gian ngày – đêm.
5.7.5 Đối với những đường hầm có độ dài lớn và phức tạp hoặc có lưu lượng người đi bộ cao (tại các khu vực nhà ga, trung tâm thương mại, hội chợ triển lãm vv…) thì ngoài hệ thống chiếu sáng chung cần có hệ thống chiếu sáng sự cố phân tán người được nuôi bằng nguồn điện riêng biệt đảm bảo duy trì mức độ rọi trung bình không nhỏ hơn 5 lx trong vòng 2 giờ khi xảy ra sự cố mất điện lưới của hệ thống chiếu sáng chung
Bảng 11 – Yêu cầu chiếu sáng cầu và đường hầm dành cho người đi bộ
| Đối tượng chiếu sáng | Ban ngày | Ban đêm | Mật độ công suất tối đa, (W/m) | |||
| Độ rọi ngang En (lx) | Độ rọi ngang En (lx) | |||||
| Trung bình | Tối thiểu | Trung bình | Tối thiểu | |||
| Đường hầm cho người đi bộ L ≤ 60m Đường hầm cho người đi bộ – Khu vực 20m hai đầu hầm – Khu vực giữa hầm |
75
300 75 |
30
100 30 |
75
75 75 |
30
30 30 |
20 | |
| Cầu cho người đi bộ | Hở | k/aa | k/a | 30 | 10 | 10 |
| Kín | 75 | 30 | 75 | 30 | 20 | |
| Cầu thang, lối lên xuống | Hở | k/a | k/a | 30 | 10 | 10 |
| Kín | 75 | 30 | 75 | 30 | 20 | |
| a k/a: không áp dụng | ||||||
5.7.6 Hệ thống chiếu sáng cầu thang lên, xuống phải tạo ra sự tương phản rõ rệt giữa các bề mặt thẳng đứng và bề mặt nằm ngang của bậc thang ngay cả khi chúng được lát bằng các loại vật liệu có mầu sắc khác nhau. Tỷ số giữa độ rọi trung bình trên bề mặt ngang và độ rọi trung bình trên bề mặt đứng của các bậc cầu thang không được nhỏ hơn tỉ lệ 3 : 1.
5.7.7 Bố trí đèn trong hầm và trên cầu cần xem xét đến khả năng bảo vệ chống phá hoại và thuận tiện trong vận hành bảo dưỡng thiết bị chiếu sáng.
6 Chiếu sáng bên ngoài các công trình công cộng
Chiếu sáng bên ngoài các công trình công cộng như các trung tâm đô thị , quảng trường, các điểm đỗ giao thông công cộng ngoài trời, các khu trung tâm thương mại và khu vực vui chơi công cộng, công viên vườn hoa, các công trình kiến trúc, tượng đài, đài phun nước, v.v phải xây dựng trên cơ sở giải pháp tổng thể, đáp ứng các yêu cầu ưu tiên về mức độ quan trọng của chúng. Với các yêu cầu xếp theo thứ tự ưu tiên :
a) Chiếu sáng để bảo đảm an toàn cho người đi bộ, tránh tai nạn giao thông và ngăn chặn tệ nạn xã hội;
b) Chiếu sáng tương ứng với cường độ giao thông, kể cả người đi bằng phương tiện thô sơ;
c) Thiết kế chiếu sáng và lựa chọn thiết bị chiếu sáng có hình thức, mẫu mã, màu sắc phù hợp tôn vẻ đep của cảnh quan kiến trúc và cảnh quan đô thị;
d) Kết hợp hài hòa với hệ thống chiếu sáng giao thông công cộng, hệ thống chiếu sáng dân lập, buôn bán thương mại để tránh gây ra hiện tượng ô nhiễm ánh sáng đô thị và các công trình xung quanh.
6.1 Chiếu sáng bên ngoài các khu trường học, bệnh viện, trung tâm thương mại, hội chợ triển lãm và các trụ sở
Độ rọi ngang trung bình và mật độ công suất chiếu sáng tối đa trên một mét vuông diện tích bên ngoài các khu trường học, bệnh viện, trung tâm thương mại, hội chợ triển lãm và các trụ sở quy định trong Bảng 12.
Bảng 12 – Yêu cầu chiếu sáng bên ngoài các khu trường học, bệnh viện, trung tâm thương mại, hội chợ triển lãm và các trụ sở
| STT | Đối tượng chiếu sáng | Độ rọi ngang trung bình (lx) | Mật độ công suất tối đa, (W/m2) |
| 1 | Trường học
· Cổng vào · Đường nội bộ · Sân chơi và tập thể dục |
10 5 5 |
1,5 0,5 0,5 |
| 2 | Bệnh viện
· Cổng vào, khu vực tiếp nhận bệnh nhân · Đường giữa các khu điều trị · Khu vực sân nghỉ ngơi · Sân đỗ xe |
20 5 3 10 |
3 0,5 0,5 1,5 |
| 3 | Trung tâm thương mại – Hội chợ triển lãm
· Cổng vào · Đường giữa các khu trưng bầy, bán hàng · Sân trưng bầy sản phẩm, bán hàng ngoài trời · Sân đỗ xe |
20 10 50 10 |
3 1,5 6 1,5 |
| 4 | Trụ sở
· Cổng vào · Đường nội bộ · Sân đỗ xe |
20 5 10 |
3 0,5 1,5 |
6.2 Chiếu sáng các điểm đỗ giao thông công cộng ngoài trời
6.2.1 Độ rọi ngang trung bình, độ rọi ngang nhỏ nhất và mật độ công suất chiếu sáng tối đa trên 1 mét vuông diện tích bên ngoài trên mặt nền các điểm đỗ giao thông công cộng ngoài trời quy định trong Bảng 13.
Bảng 13 – Yêu cầu chiếu sáng các điểm đỗ giao thông công cộng ngoài trời
| STT | Đối tượng chiếu sáng | Độ rọi ngang En (lx) | Mật độ công suất tối đa, (W/m2) | |
| Trung bình | Tối thiểu | |||
| 1 | Bến xe buýt – xe khách liên tỉnh | 50 | 20 | 6 |
| 2 | Bãi đỗ xe ngoài trời khu vực trung tâm đô thị | 30 | 10 | 4 |
| 3 | Bãi đỗ xe ngoài trời khu vực ngoại thành, nông thôn | 10 | 3 | 1,5 |
| 4 | Bãi đỗ xe – các điểm trông giữ xe công cộng nằm trên các tuyến đường (Chiếm 1 phần lòng đường, vỉa hè) | Theo tiêu chuẩn thiết kế chiếu sáng nhân tạo đường, đường phố, mà bến đỗ xe, điểm trông giữ xe nằm trên tuyến đường đó | ||
6.2.2 Hệ số đồng đều của độ rọi ngang En, được định nghĩa là tỷ số giữa giá trị nhỏ nhất và giá trị trung bình, phải đảm bảo không nhỏ hơn 0,2.
6.2.3 Đèn phải được bố trí thích hợp để đảm bảo không gây chói lóa cho người điều khiển phương tiện giao thông.
6.3. Chiếu sáng công viên, vườn hoa
6.3.1 Chiếu sáng công viên, vườn hoa ngoài việc phải đảm bảo mức độ chiếu sáng phù hợp đối với từng hoạt động chức năng phải đặc biệt quan tâm đến yếu tố trang trí, thẩm mỹ:
a) Kiểu dáng thiết bị chiếu sáng sử dụng để chiếu sáng (đèn, cột đèn, cần đèn) phải phù hợp với cảnh quan môi trường kiến trúc trong khu vực;
b) Đèn, vị trí, cao độ đặt đèn và góc chiếu không gây chói lóa;
c) Theo hình thức và quy mô của mỗi công viên, vườn hoa hệ thống chiếu sáng có thể bao gồm toàn bộ hoặc một số trong những thành phần sau đây:
1) Chiếu sáng chung khu vực cổng ra vào;
2) Chiếu sáng sân tổ chức các hoạt động ngoài trời;
3) Chiếu sáng đường dạo đảm bảo tính dẫn hướng tạo cho người đi bộ có cảm nhận rõ ràng về hình dạng và hướng của đường;
4) Chiếu sáng cảnh quan thảm cỏ, bồn hoa, mặt nước;
5) Chiếu sáng tạo phông trang trí;
6) Chiếu sáng tạo các điểm nhấn kiến trúc như đài phun nước, các cụm tiểu cảnh cây xanh – non bộ.
6.3.2 Độ rọi ngang trung bình và mật độ công suất tối đa trong các công viên, vườn hoa quy định trong Bảng 14
Bảng 14 – Yêu cầu chiếu sáng công viên, vườn hoa
| STT | Đối tượng chiếu sáng | Độ rọi ngang trung bình (lx) | Mật độ công suất tối đa, (W/m2) | |
| Công viên | Vườn hoa | |||
| 1 | Công viên vườn hoa ở khu vực trung tâm đô thị lớn, có lưu lượng người qua lại cao, khả năng xẩy ra các tội phạm hình sự ở mức cao
· Cổng vào chính · Cổng vào phụ · Đường trục chính · Đường nhánh, đường dạo có nhiều cây xanh · Sân tổ chức các hoạt động ngoài trời |
20 10 10
5
10 |
k/aa k/a 7
3
10 |
3 1,5 1,5
0,5
1,5 |
| 2 | Công viên vườn hoa ở khu vực ngoại thành đô thị lớn, có lưu lượng người qua lại trung bình, khả năng xẩy ra các tội phạm hình sự ở mức trung bình
· Cổng vào chính · Cổng vào phụ · Đường trục chính · Đường nhánh, đường dạo có nhiều cây xanh · Sân tổ chức các hoạt động ngoài trời |
10 7 5
3
7 |
k/a k/a 3
2
7 |
1,5 1 0,5
0,5
1 |
| 3 | Công viên vườn hoa ở khu vực đô thị nhỏ, có lưu lượng người qua lại thấp, khả năng xẩy ra các tội phạm hình sự ở mức thấp
· Cổng vào chính · Cổng vào phụ · Đường trục chính · Đường nhánh, đường dạo có nhiều cây xanh · Sân tổ chức các hoạt động ngoài trời |
7 5 5
2
5 |
k/a k/a 3
1
5 |
1 0,5 0,5
0,5
0,5 |
| a k/a: không áp dụng | ||||
6.3.3 Nguồn sáng dùng để chiếu sáng vườn hoa, công viên phải là nguồn bức xạ ở nhiệt độ mầu cao, có chỉ số truyền mầu lớn, có thành phần quang phổ bức xạ phù hợp với môi trường có nhiều cây xanh, gam màu ánh sáng trắng lạnh để tạo cảm giác mát mẻ, dễ chịu, thư giãn
7 Chiếu sáng công trình đặc biệt (công trình kiến trúc đặc biệt, tượng đài)
7.1 Chiếu sáng các công trình kiến trúc đặc biệt
7.1.1 Hệ thống chiếu sáng các công trình kiến trúc đặc biệt phải bảo đảm các yêu cầu:
– Chiếu sáng đồng đều các bề mặt chính của công trình;
– Làm rõ các giới hạn của công trình;
– Khắc họa các chi tiết, đặc thù của công trình;
– Tạo ra sự tương phản sáng tối và tương phản màu sắc giữa các chi tiết.
7.1.2 Thiết bị chiếu sáng để chiếu sáng công trình kiến trúc đặc biệt phải có đặc điểm phân bố ánh sáng (đường cong phân bố cường độ sáng), màu sắc ánh sáng (theo nhiệt độ màu và chỉ số truyền màu của nguồn sáng) phù hợp với đặc điểm kiến trúc, cảnh quan, màu sắc công trình. Vị trí lắp đặt, góc chiếu đèn không gây chói loá cho người tham gia giao thông và người sử dụng công trình.
7.1.3 Đặc điểm chiếu sáng và hình thức chiếu sáng các công trình kiến trúc quy định trong Bảng 15.
Bảng 15 – Đặc điểm chiếu sáng công trình kiến trúc
| Loại công trình | Hình thức chiếu sáng | Mức chiếu sáng | Màu sắc | Yêu cầu chung |
| Công trình Lăng, Đài tưởng niệm | cục bộ | thấp | tối-nóng | tăng vẻ tôn nghiêm |
| Công trình tượng đài | cục bộ | trung bình | phụ thuộc vật liệu-màu sắc | lựa chọn hướng và góc thích hợp |
| Công trình có dạng kiến trúc cổ | cục bộ | thấp | tối-nóng | hạn chế lóa tối đa |
| Công trình có kết cấu kích thước lớn | cục bộ | cao | phụ thuộc vật liệu màu sắc | làm nổi bật công trình |
| Tòa nhà có kiểu dáng đẹp | cục bộ | trung bình | phụ thuộc vật liệu-màu sắc | khắc họa kiến trúc điển hình |
| Cao ốc hiện đại | Chung đều | cao | phụ thuộc vật liệu-màu sắc | bề mặt công trình sáng đều |
7.1.4 Giá trị độ rọi trung bình / độ chói trung bình trên bề mặt công trình quy định trong Bảng 16
Bảng 16 – Giá trị độ rọi / độ chói trung bình trên bề mặt công trình kiến trúc
| STT | Vật liệu bề mặt công trình | Hệ số phản xạ của vật liệu | Độ rọi ngang / độ chói trung bình tương ứng với các khoảng độ chói của nền: | Hệ số tương phản K với tình trạng bề mặt công trình: | ||||
| nhỏ hơn 1 cd/m2 | từ 1 đến 5 cd/m2 | lớn hơn 5 cd/m2 | Sạch | Bẩn | Rất bẩn | |||
| 1 | Đá hoa, vữa, gạch men trắng | > 0,6 | 20/
3 |
30/
5 |
75/
15 |
3,0 | 5,0 | 10,0 |
| 2 | Gạch, sơn màu vàng |
0,6 ≥ > 0,5 | 30/
5 |
50/
8 |
100/
15 |
2,5
2,5 |
5,0
2,5 |
8,0
8,0 |
| 3 | Đá xám, tường xi măng | 0,45 ≥ > 0,3 | 50/
5 |
75/
8 |
150/
15 |
2,5 | 2,5 | 8,0 |
| 4 | Gạch, sơn màu nâu nhạt |
0,45 ≥ > 0,3 | 50/
5 |
75/
8 |
150/
15 |
2,0 | 4,0 | 7,0 |
| 5 | Đá granit hồng | 0,45 ≥ > 0,3 | 50/
5 |
75/
8 |
150/
15 |
2,0 | 4,0 | 7,0 |
| 6 | Bê tông xây dựng | 0,45 ≥ > 0,3 | 75/
10 |
100/
12 |
200/
25 |
1,2 | 2,0 | 3,0 |
| 7 | Gạch đỏ | 0,30 ≥ > 0,15 | 100/
8 |
150/
10 |
300/
20 |
2,0 | 4,0 | 5,0 |
| 8 | Đá đen, granit xám | 0,30 ≥ > 0,15 | 100/
8 |
150/
10 |
300/
20 |
2,0 | 3,0 | 5,0 |
| 9 | Gạch, sơn thẫm màu | 0,15 ≥ | 150/
8 |
200/
10 |
400/
20 |
1,5 | 2,0 | 3,0 |
Ghi chú:
Tùy theo điều kiện cụ thể, chỉ cần lựa chọn áp dụng một trong 2 chỉ tiêu độ rọi hoặc độ chói;
Độ rọi trung bình trên bề mặt công trình và độ chói trung bình đã tính đến yếu tố suy giảm.
Nếu độí tượng được chiếu sáng ở ngoại vi đô thị, trên nền là cây xanh hoặc nền trời không được chiếu sáng thì độ chói của nền lấy trị số nhỏ hơn 1 cd/m2;
Nếu đối tượng được chiếu sáng ở gần công trình có mặt phẳng sáng lớn (tòa nhà có diện tích lắp kính tương đối lớn có chiếu sáng bên trong) thì độ chói của nền lấy trị số lớn hơn 5 cd/m2.
7.1.5 Hệ thống chiếu sáng các công trình kiến trúc đặc biệt thường phải sử dụng các nguồn sáng có công suất lớn, vì vậy giải pháp sử dụng năng lượng tiết kiệm và hiệu quả càng phải được quan tâm bằng cách sử dụng những nguồn sáng, thiết bị chiếu sáng có hệ số hiệu dụng lớn, phải có thiết bị điều khiển thay đổi theo chương trình để tạo nên ấn tượng sinh động và linh hoạt cho công trình về đêm cũng như giảm thiểu điện năng chiếu sáng công trình.
7.2 Chiếu sáng các tượng đài
7.2.1 Các tượng đài, đài kỷ niệm có giá trị kiến trúc, thẩm mỹ và lịch sử , độc lập với các quần thể kiến trúc xung quanh cần được chiếu sáng từ nhiều hướng, nhưng phải có một hướng chính rõ rệt.
7.2.2 Yêu cầu chiếu sáng các tượng đài, đài kỷ niệm phải tuân theo các quy định được nêu trong 7.1.1, 7.1.2 và 7.1.5.
7.2.3 Chiếu sáng các tượng đài, đài kỷ niệm phải được thiết kế và được sự thẩm định chuyên môn về thẩm mỹ, kiến trúc và chiếu sáng.
7.2.4 Giá trị độ rọi / độ chói trung bình trên mặt đứng tượng đài, đài kỷ niệm tương ứng với độ chói của mặt chính nền quy định trong Bảng 17
Bảng 17 – Độ rọi / độ chói trung bình trên mặt đứng của tượng đài, đài kỷ niệm trên bề mặt chính công trình
| TT | Vật liệu bề mặt tượng đài, đài kỷ niệm | Hệ số phản xạ của vật liệu | Độ rọi trung bình Etb (lux)
Độchói trung bình Ltb (cd/m2) |
||
| Với độ chói của nền tương ứng | |||||
| < 1 cd/m2 | từ 1 đến 5 cd/m2 | > 5 cd/m2 | |||
| 1 | Thạch cao, men sáng | ρ > 0,6 | 30
5 |
50
10 |
75
15 |
| 2 | Bê tông sáng và xám nhạt | 0,6 ≥ ρ > 0,45 | 50
8 |
75
12 |
100
15 |
| 3 | Granit và đá hoa màu xám | 0,45 ≥ ρ > 0,3 | 75
10 |
100
12 |
150
20 |
| 4 | Đá tảng và đá hoa xám | 0,3 ≥ ρ > 0,15 | 100
8 |
150
10 |
200
15 |
| 5 | Đồng đen, gang | 0,15 ≥ ρ | 150
8 |
200
15 |
300
15 |
Ghi chú :
Tùy theo điều kiện cụ thể, chỉ cần lựa chọn áp dụng một trong hai chỉ tiêu độ rọi hoặc độ chói ;
Độ rọi trung bình trên bề mặt tượng đài, đài kỷ niệm và độ chói trung bình đã tính đến yếu tố suy giảm ;
Trường hợp tượng đài, đài kỷ niệm cần quan sát được từ xa trên 300m thì giá trị trong bảng 17 có thể nhân được với hệ số điều chỉnh K = 1,5 ;
Trường hợp tượng đài, đài kỷ niệm đặt trong khuôn viên công viên vườn hoa, ở ngoại vi thành phố thì giá trị trong bảng 17 có thể được nhân với hệ số điều chỉnh K = 0,5.
7.3 Chiếu sáng đài phun nước
7.3.1 Hệ thống chiếu sáng phải có hiệu quả hấp dẫn thị giác cao.
7.3.2 Các thiết bị và vật liệu đặt dưới nước phải có chất lượng cao và đảm bảo vận hành an toàn.
7.3.3 Hệ thống chiếu sáng phải sử dụng thiết bị có chất lượng cao, khả năng chịu nước tốt. Các đèn phải sử dụng điện áp thấp 12V-24V có cấp bảo vệ III, độ kín khít phải đạt cấp bảo vệ tối thiểu IP X5, các đèn bố trí ngầm dưới nước phải có cấp bảo vệ tối thiểu IP X7.
7.3.4 Tổng cường độ ánh sáng (l) của các nguồn sáng bố trí dưới đáy mỗi cột nước phun trong đài phun nước theo hướng phun vuông góc với bề mặt nằm ngang tương ứng với từng độ cao cột nước không được nhỏ hơn các giá trị quy định trong bảng 18.
Bảng 18. Yêu cầu chiếu sáng đài phun nước
| Cao độ cột nước phun H (m) | Tổng cường độ ánh sáng của các nguồn sáng bố trí dưới đáy mỗi cột nước phun l (cd) |
| 1,5 | 4.000 |
| 3,0 | 11.000 |
| 6,0 | 34.000 |
| 9,0 | 69.000 |
| 12,0 | 115.000 |
| 15,0 | 170.000 |
8 Chiếu sáng các công trình thể thao ngoài trời
8.1 Nguyên tắc chung
Tính toán, thiết kế chiếu sáng cho các công trình thể thao ngoài trời cần phải nghiên cứu khảo sát kỹ các đặc điểm của công trình:
– Công năng công trình, hình dáng, kết cấu, kích thước công trình, kích thước của các khu vực cần chiếu sáng, vật liệu, màu sắc, tính chất phản xạ của mặt sân, khán đài, các vị trí có khả năng bố trí, lắp đặt đèn;
– Mục đích sử dụng cần phân biệt sân dành cho thi đấu, tập luyện, hay có truyền hình, truyền hình mầu;
– Đặc điểm không gian quanh công trình (nằm sát khu dân cư, cạnh đường giao thông…);
– Đặc điểm khí hậu tiểu vùng (vận tốc gió tối đa, độ ẩm, sương mù…);
– Nguồn điện cung cấp cho chiếu sáng phải là nguồn điện riêng biệt phục vụ cho chiếu sáng thi đấu và chiếu sáng sự cố khi mất điện để phân tán người (sử dụng trạm biến áp riêng biệt ).
8.2 Yêu cầu chiếu sáng
8.2.1 Các chỉ tiêu định lượng và chất lượng chiếu sáng do hệ thống chiếu sáng các công trình thể thao ngoài trời tương ứng với các loại hình thi đấu (độ rọi trung bình và độ đồng đều về độ rọi) quy định trong các Bảng 19, Bảng 21, Bảng 23 và Bảng 25
8.2.2 Hệ thống chiếu sáng cũng như các đèn sử dụng để chiếu sáng không được gây chói lóa cho vận động viên và khán giả.
8.2.3 Đèn sử dụng để chiếu sáng phải là các đèn có hệ số hiệu dụng cao, an toàn cao, có khả năng chống sét đánh thẳng hoặc lan truyền , chỉ số bảo vệ đạt IP66.
8.2.4 Nguồn sáng sử dụng là nguồn sáng có nhiệt độ mầu, hệ số truyền mầu, hiệu suất phát quang cao bố trí trên các cột cao hoặc trên mép mái che các khán đài.
8.2.5 Có hệ thống điều khiển chiếu sáng thích hợp cho các chế độ thi đấu tương ứng và phải có hệ thống chiếu sáng dự phòng, hệ thống chiếu sáng sự cố để giải thoát, phân tán người khi có sự cố mất điện Độ rọi ngang trung bình trên mặt sân và khán đài trong chế độ chiếu sáng sự cố không được nhỏ hơn 5lx.
- Chiếu sáng sân bóng đá, sân vận động đa chức năng
- Phạm vi chiếu sáng
Phạm vi chiếu sáng sân bóng đá bao gồm toàn bộ phần mặt sân giới hạn bởi các đường biên dọc và biên ngang.
Phạm vi chiếu sáng sân vận động đa chức năng bao gồm toàn bộ phần mặt sân giới hạn bởi các đường biên dọc và biên ngang.
Phạm vi chiếu sáng sân vận động đa chức năng bao gồm toàn bộ phần mặt sân giới hạn bởi ranh giới ngoài của các đường chạy quanh sân. Trong trường hợp có một số hạng mục thể thao được bố trí ngoài ranh giới đường chạy thì phạm vi chiếu sáng phải bao gồm cả các khu vực đó.
- Yêu cầu chiếu sáng sân bóng đá, sân vận động đa chức năng : Độ rọi ngang trung bình trên mặt sân và hệ số đồng đều của bộ rọi không được nhỏ hơn các giá trị quy định trong bảng 19
Bảng 19 – Yêu cầu chiếu sáng sân bóng đá, sân vận động đa chức năng
| TT | Mục đích sử dụng | Độ rọi trung bình (lx) | Độ đồng đều |
| 1 | Luyện tập | 200 | 0,4 |
| 2 | Thi đấu | 300 | 0,5 |
| 3 | Thi đấu chính thức | 700 | 0,6 |
| 4 | Thi đấu có TV | 1000 | 0,6 |
- Bố trí đèn chiếu sáng
Tùy thuộc vào các yếu tố : quy mô, kết cấu công trình và yêu cầu về chất lượng chiếu sáng, bố trí đèn chiếu sáng cho các sân bóng đá và sân vận động đa chức năng có thể theo 2 hình thức :
- Lắp đặt đèn trên cột đèn
- Lắp đặt đèn phân bố đều trên mép mái che khác đài.
- Cao độ đặt đèn
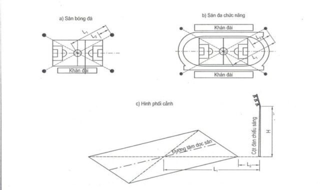
Độ cao của cột đèn và thiết kế dàn đèn phải được tính toán sao cho cao độ của đèn thấp nhất không được nhỏ hơn giá trị quy định trong bảng 20.
Bảng 20. Cao độ lắp đặt đèn chiếu sáng sân bóng đá – sân vận động đa chức năng
| TT | Phương án bố trí chiếu sáng | Số cột đèn | Cao độ của đèn thấp nhất | |
| Công thức tính toán | Ghi chú | |||
| 1 | Bố trí chiếu sáng 2 bên sân | 08 | 0,35L1 ≤ H ≤ 0,6L1
và 1L2 ≤ H ≤ 4L2 |
H, L1 , L2 xác định theo Hình 4 |
| 2 | Bố trí chiếu sáng 4 góc sân | 04 | 0,35L1 ≤ H ≤ 0,6L1
và H ≤ 3L2 |
H, L1 , L2 xác định theo Hình 4 |
Chú thích : H ,L1,L2 – Được xác định theo hình 4

- Thiết bị chiếu sáng
Thiết bị sử dụng cho chiếu sáng sân bóng đá và sân vận động đa chức năng phải là đèn pha với chủng loại được lựa chọn theo tiêu chuẩn quy định.
8.2.7 Chiếu sáng sân quần vợt
8.2.7.1 Phạm vi chiếu sáng
Phạm vi chiếu sáng sân quần vợt bao gồm toàn bộ phần mặt sân được sử dụng để thi đấu được giới hạn bởi hang rào hoặc khán đài. Trong quá trình tính toán, đo đạc và đánh giá chỉ tiêu độ rọi trên mặt sân và hệ số đồng đều của độ rọi, diện tích chiếu sáng của sân được quy định theo Hình 5.
8.2.7.2. Yêu cầu chiếu sáng sân quần vợt : Độ rọi ngang trung bình trên mặt sân và hệ số đồng đều độ rọi không được nhỏ hơn các giá trị được quy định trong bảng 21
Bảng 21 – Yêu cầu chiếu sáng sân quần vợt
| TT | Mục đích sử dụng | Độ rọi trung bình (lx) | Hệ số đồng đều ngang |
| 1 | Thi đấu chính thức, có TV | 1000 | 0,60 |
| 2 | Thi đấu thông thường | 700 | 0,50 |
| 3 | Luyện tập | 300 | 0,4 |
- Cao độ đặt đèn
Độ cao của cột đèn và thiết kế dàn đèn phải được tính toán sao cho cao độ của đèn thấp nhất không được nhỏ hơn giá trị quy định trong bảng 22.
Bảng 22. Cao độ lắp đèn chiếu sáng sân quần vợt
| TT | Mục đích sử dụng | Cao độ của đèn thấp nhất H ( m ) | |
| Giá trị tối thiểu | |||
| 1 | Luyện tập – giải trí | 8,0 | |
| 2 | Thi đấu thông thường và thi đấu chính thức | 10,0 | |
- Thiết bị chiếu sáng
Thiết bị sử dụng cho chiếu sáng quần vợt phải là đèn pha với chủng loại được lựa chọn theo tiêu chuẩn theo quy định
8.2.8 Chiếu sáng sân bóng chuyền – bóng rổ – cầu lông
8.2.8.1 Phạm vi chiếu sáng
Phạm vi chiếu sáng sân bóng chuyền – bóng rổ – cầu lông bao gồm toàn bộ phần mặt sân được sử dụng để thi đấu. Trong quá trình tính toán, đo đạc và đánh giá chỉ tiêu độ rọi trên mặt sân và hệ số đồng đều của độ rọi , diện tích chiếu sáng cúa sân được quy định theo hình vẽ 7.
8.2.8.2 Yêu cầu chiếu sáng: Độ rọi ngang trung bình trên mặt sân và hệ số đồng đều của độ rọi không được nhỏ hơn các giá trị được quy định trong bảng 23
Bảng 23 – Yêu cầu chiếu sáng sân bóng chuyền, bóng rổ, cầu lông
| TT | Mục đích sử dụng | Độ rọi trung bình (lx) | Hệ số đồng đều | ||
| Bóng chuyền | Bóng rổ | Cầu lông | |||
| 1 | Thi đấu chính thức | 500 | 500 | 500 | 0,60 |
| 2 | Thi đấu thông thường | 300 | 300 | 300 | 0,50 |
| 3 | Luyện tập | 200 | 200 | 200 | 0,40 |
8.2.8.3 Cao độ đặt đèn
Độ cao của cột đèn và thiết kế dàn đèn phải được tính toán sao cho cao độ của đèn thấp nhất không được nhỏ hơn giá trị quy định trong bảng 22.
Bảng 24. Cao độ lắp đặt đèn chiếu sáng sân bóng chuyền – bóng rổ – cầu lông
| TT | Mục đích sử dụng | Cao độ của đèn thấp nhất H (m) | |
| Công thức tính toán | Giá trị tối thiểu | ||
| 1 | Luyện tập – giải trí | H2 ≥ 3 + 0,4L | 6,0 |
| 2 | Thi đấu thông thường và thi đấu chính thức | H1 ≥ 5 + 0,4L | 8,0 |
Chú thích: H1 – cao độ của đèn thấp nhất cho trường hợp sân thi đấu;
H2 – cao độ của đèn thấp nhất cho trường hợp sân luyện tập;
L – khoảng cách chiếu sáng;
Các kích thước H1, H2, L được xác định theo hình 5.

8.2.8.4 Thiết bị chiếu sáng
Thiết bị sử dụng cho chiếu sáng sân bóng chuyền – bóng rổ – cầu lông phải là đèn pha với chủng loại được lựa chọn theo tiêu chuẩn quy định.
- Chiếu sáng bể bơi ngoài trời
- Phạm vi chiếu sáng
Phạm vi chiếu sáng bể bơi bao gồm toàn bộ phạm vi bể bơi và khu vực xung quanh được giới hạn bởi hang rào hoặc khán đài.
- Yêu cầu chiếu sáng :Độ rọi trung bình trong phạm vi chiếu sáng của bể bơi và hệ số đồng đều của độ rọi không được nhỏ hơn các giá trị được quy định trong bảng 25.
Bảng 25. Tiêu chuẩn chiếu sáng bể bơi ngoài trời
| TT | Mục đích sử dụng | Độ rọi ngang trung bình (lx) | Hệ số đồng đều | Độ rọi đứng trung bình (lx) |
| 1 | Thi đấu chính thức | 750 | 0,50 | 200 |
| 2 | Thi đấu thông thường | 500 | 0,50 | 200 |
| 3 | Luyện tập | 200 | 0,40 |
Chú thích:
Un – hệ số đồng đều theo phương ngang của độ rọi;
En(tb) – giá trị độ rọi ngang trung bình trên mặt nước hoặc mặt sàn quanh bể bơi (lx);
Trường hợp có sự khác nhau về cao độ giữa mặt nước và mặt sàn quanh bể bơi thì độ rọi ngang được đo kiểm và tính toán tại cao độ mặt sàn quanh bể bơi sát với mặt nước;
Tiêu chuẩn độ rọi đứng trung bình chỉ áp dụng cho các bể bơi có cầu nhảy phục vụ thi đấu và biểu diễn.
Ed(tb) – độ rọi đứng trung bình tại cao độ nơi diễn ra các động tác biểu diễn trên không của vận động viên hướng về phía hai bên bể bơi;
- Bố trí cột đèn chiếu sáng
Tùy theo hình dạng, kích thước của các bể bơi mà cỏ thể lựa chọn các phương án bố trí cột đèn chiếu sáng khác nhau để đảm bảo không xuất hiện các khoảng tối trong phạm vi cần chiếu sáng.
- Cao độ đặt đèn
Độ cao của cột đèn và thiết kế dàn đèn phải được tính toán sao cho cao độ của đèn thấp nhất không được nhỏ hơn giá trị quy định trong bảng 26.
- Thiết bị chiếu sáng
Thiết bị sử dụng cho chiếu sáng bể bơi ngoài trời phải là đèn pha với chủng loại được lựa chọn theo tiêu chuẩn quy định trong bảng 26.
Bảng 26. Cao độ lắp đặt đèn chiếu sáng bể bơi ngoài trời
| TT | Loại bể bơi | Cao độ của đèn thấp nhất | |
| Công thức tính toán | Giá trị tối thiểu | ||
| 1 | Bể bơi có khán đài | H1 ≥ 0,8W – h | 0,25d |
| 2 | Bể bơi không có khán đài | H2 ≥ 0,6W – h | 0,25d |
Chú thích: H1 – cao độ của đèn thấp nhất cho trường hợp bể bơi có khán đài;
H2 – cao độ của đèn thấp nhất cho trường hợp bể bơi không có khán đài;
W – khoảng cách theo phương ngang giữa tâm cột đèn và thành bể bơi phía đối diện;
h – chênh lệch độ cao giữa mặt nước và mặt sàn xung quanh bể bơi;
d – khoảng cách giữa các cột đèn;

9 Sử dụng năng lượng hiệu quả để chiếu sáng các công trình công cộng và kỹ thuật hạ tầng
9.1 Để sử dụng năng lượng có hiệu quả trong chiếu sáng công trình công cộng và kỹ thuật hạ tầng áp dụng các biện pháp sau đây:
a) Thiết kế chiếu sáng hợp lý bảo đảm các chỉ tiêu định lượng, chất lượng chiếu sáng và mật độ công suất tối đa được quy định trong các bảng của tiêu chuẩn này
b) Đối với các đường cho xe cơ giới cần chiếu sáng bằng đèn sử dụng các nguồn sáng: Sodium cao áp, Metal halide, LED;
c) Đối với hè phố, đường cho xe thô sơ và người đi bộ cần chiếu sáng bằng đèn sử dụng các nguồn sáng LED, Sodium, Compact công suất nhỏ dưới 80W;
d) Các công trình thể dục thể thao, kiến trúc, tượng đài cần ưu tiên chiếu sáng bằng đèn pha sử dụng các nguồn sáng: Metal halide, LED có công suất lớn;
e) Các khu vực trung tâm , dịch vụ thương mại và vui chơi giải trí có thể kết hợp sử dụng nhiều loại nguồn sáng với các giải pháp đa dạng để tăng mức độ thẩm mỹ, tuy nhiên cần ưu tiên các loại nguồn bức xạ ánh sáng trắng có hiệu suất cao;
f) Sử dụng đèn, bóng đèn có hiệu suất sáng cao, tuổi thọ lớn. Hiệu suất năng lượng của bóng đèn dùng trong các đèn chiếu sáng công cộng được quy định trong các bảng : Bảng – 27, Bảng – 28, Bảng – 29, Bảng – 30, Bảng – 31 thuộc các tiêu chuẩn quốc gia TCVN hiện hành
Bảng 27 – Hiệu suất năng lượng của bóng đèn huỳnh quang
|
Dải công suất (W) |
Hiệu suất năng lượng (lm/W) | |||
| Nhiệt độ màu Tc < 4500 K | Nhiệt độ màu Tc ³ 4500 K | |||
| Mức tối thiểu | Mức cao | Mức tối thiểu | Mức cao | |
| đến 20 | 65 | 68 | 64 | 66 |
| trên 20 đến 35 | 70 | 73 | 70 | 75 |
| trên 36 đến 65 | 76 | 80 | 75 | 78 |
Bảng 28 – Hiệu suất năng lượng của bóng đèn huỳnh quang Compact
|
Dải công suất (W) |
Hiệu suất năng lượng (lm/W) | |||
| Nhiệt độ màu Tc < 4500 K | Nhiệt độ màu Tc ³ 4500 K | |||
| Mức tối thiểu | Mức cao | Mức tối thiểu | Mức cao | |
| từ 5 đến 8 | 40 | 50 | 36 | 46 |
| từ 9 đến 14 | 45 | 55 | 44 | 52 |
| từ 15 đến 24 | 55 | 60 | 51 | 57 |
| từ 25 đến 60 | 60 | 65 | 55 | 62 |
Bảng 29 – Hiệu suất năng lượng của bóng đèn phóng điện cao áp ( sodium, Metal halide)
| Công suất (W) | 70 | 100 | 150 | 250 | 400 | 1000 | |
| Hiệu suất năng lượng
(lm/W) |
Mức tối thiểu | 77 | 83 | 93 | 100 | 110 | 120 |
| Mức cao | 89 | 93 | 103 | 110 | 120 | 130 | |
Bảng 30 – Giá trị hiệu suất sáng đối với bóng đèn LED có balát lắp liền
| Mức hiệu suất năng lượng | Hiệu suất sáng ban đầu (lm/W) | |
| Mã màu: 65/57/50/40 ( Nhiệt độ màu Tc < 4500 K ) | Mã màu: 35/30/27/P27 ( Nhiệt độ màu Tc ³ 4500 K) | |
| cao | 90 | 80 |
| Thấp | 70 | 60 |
Bảng 31 – Giá trị hiệu suất sáng đối với bóng đèn LED hai đầu
| Mức hiệu suất năng lượng | Hiệu suất sáng ban đầu (lm/W) | |
| Mã màu: 65/57/50/40 ( Nhiệt độ màu Tc < 4500 K ) | Mã màu: 35/30/27/P27 ( Nhiệt độ màu Tc ³ 4500 K) | |
| Cao | 100 | 90 |
| Thấp | 90 | 80 |
g) Sử dụng Balatt, chấn lưu có hiệu suất năng lượng cao. Hiệu suất năng lượng của Balatt, chấn lưu dùng trong các đèn chiếu sáng công trình đô thị cho trong các bảng: Bảng – 32, Bảng – 33, Bảng -34. thuộc các tiêu chuẩn quốc gia TCVN hiện hành
Bảng 32 – Hiệu suất năng lượng của balát điện tử cho bóng đèn huỳnh quang
| Công suất danh định
(W) |
Hệ số hiệu suất của balát (BEF) | |
| Mức tối thiểu | Mức cao | |
| 4 | 6.47 | 7,30 |
| 6 | 6,23 | 7,05 |
| 8 | 5,98 | 6,86 |
| 14 | 5,26 | 6,02 |
| 18 | 4,78 | 5,52 |
| 20 | 4,37 | 5,05 |
| 28 | 3,24 | 3,75 |
| 32 | 2,68 | 3,04 |
| 36 | 2,40 | 2,68 |
| 40 | 2,27 | 2,47 |
| 65 | 1,05 | 1,95 |
Bảng 33 – Hiệu suất năng lượng của balát sắt từ cho bóng đèn huỳnh quang
| Công suất danh định
(W) |
Hệ số hiệu suất của balát (BEF) | |
| Mức tối thiểu | Mức cao | |
| 4 | 3,85 | 4,18 |
| 6 | 3,72 | 3,90 |
| 8 | 3,59 | 3,84 |
| 14 | 3,21 | 3,55 |
| 18 | 3,00 | 3,33 |
| 20 | 2,81 | 3,10 |
| 28 | 2,39 | 2,67 |
| 32 | 2,15 | 2,40 |
| 36 | 1,94 | 2,04 |
| 40 | 1,73 | 1,90 |
| 65 | 0,85 | 1,12 |
Bảng 34 – Hiệu suất năng lượng của balát đèn phóng điện cao áp
| Công suất (W) | 70 | 100 | 150 | 250 | 400 | 1000 | |
| BEF | Mức tối thiểu | 1.21 | 0.83 | 0.59 | 0.354 | 0.223 | 0.092 |
| Mức cao | 1.26 | 0.91 | 0.61 | 0.367 | 0.231 | 0.095 | |
| CHÚ THÍCH: Đối với các balat dùng cho các bóng đèn có công suất nằm giữa các giá trị cho trong bảng, mức hiệu suất năng lượng được lấy là mức tương ứng với giá trị công suất thấp hơn trước đó) | |||||||
h) Sử dụng các loại chao, chụp đèn đạt được các yêu cầu kỹ thuật sau:
1) Yêu cầu quang học:
– Hệ số hiệu dụng của đèn không được nhỏ hơn 0,7;
– Tấm phản quang phải có hệ số phản quang ban đầu không nhỏ hơn 0,8;
– Kính bảo vệ phải có hệ số truyền qua ban đầu không nhỏ hơn 0,85.
2) Yêu cầu về kết cấu:
– Choá đèn được chế tạo theo cấp bảo vệ không nhỏ hơn IP 66;
– Kết cấu kẹp giữ bóng đèn của choá đèn phải đảm bảo giữ đèn chắc chắn ở vị trí làm việc, các vít và mối ghép bằng vít, bu lông phải đảm bảo chống tự tháo lỏng;
– Choá đèn phải sử dụng chung được cho cả hai loại bóng E và bóng T.
3) Yêu cầu chất lượng và tuổi thọ:
– Các chi tiết kim loại của choá đèn phải được chế tạo bằng kim loại không gỉ hoặc được bảo vệ chống gỉ;
– Tấm phản quang phải đạt hệ số phản xạ không nhỏ hơn 90% so với ban đầu, sau 6000 giờ sử dụng;
– Kính bảo vệ phải đạt hệ số truyền qua không nhỏ hơn 95% so với ban đầu, sau 6000 giờ sử dụng.
4) Yêu cầu về an toàn điện:
Yêu cầu về an toàn điện đối với choá đèn chiếu sáng đường phố phải tuân theo yêu cầu tại Mục 1.3, TCVN 5828-1994 hay các yêu cầu kỹ thuật tương đương.
i) Trừ những đường trong khu dân cư có yêu cầu cao về an ninh trật tự và một vài công trình đặc biệt, đường phố đặc biệt, các đường giao thông còn lại nên áp dụng một trong các biện pháp sau để thực hiện chiếu sáng sau nửa đêm:
– Dùng thiết bị điều khiển tự động , chấn lưu tự động tiết giảm quang thông do nguồn sáng phát ra sau nửa đêm để giảm công suất tiêu thụ;
– Sử dụng hệ thống điều khiển tự động tiết giảm công suất của toàn bộ hệ thống chiếu sáng hay từng nguồn sáng riêng rẽ.
j) Xác định thời gian bật tắt đèn hợp lí tùy thuộc vào các mùa, sử dụng thiết bị tự động đóng mở hệ thống chiếu sáng theo chế độ hẹn giờ hoặc theo chế độ ánh sáng tự nhiên;
k) Định kỳ lau chùi, thay nguồn sáng đơn lẻ ( do hỏng hóc ) hay thay theo nhóm ( do quá thời gian sử dụng ) và sửa chữa các hỏng hóc của hệ thống chiếu sáng.
PHỤ LỤC TIÊU CHUẨN
PHỤ LỤC A : Giải pháp thiết kế , bố trí đèn chiếu sáng đường, đường phố
10.1. Cách bố trí cột đèn
10.1.1. Đường đơn
10.1.1.1. Bố trí một phía Áp dụng trong trường hợp l £ h
10.1.1.2. Bố trí đèn so le Áp dụng trong trường hợp l £ h
10.1.1.3. Bố trí đèn hai bên đối xứng: Áp dụng trong trường hợp l > 1,5h
10.1.1.4. Bố trí đèn giữa trục đường: Áp dụng trong trường hợp trồng nhiều cây 2 bên đường
10.1.2. Đường đôi
10.1.2.1. Bố trí trên giải phân cách : Áp dụng trong trường hợp bề rộng giải phân cách ³ 1,5m và < 6m
10.1.2.2. Bố trí hai bên: Áp dụng trong trường hợp bề rộng giải phân cách < 1 m
10.1.2.3. Bố trí đèn hỗn hợp:Áp dụng trong trường hợp đường có chiều rộng lớn
10.1.3. Bố trí đèn trên các đoạn đường cong
10.1.3.1. Đối với các đoạn đường cong có bán kính cong > 1000m, việc bố trí cột đèn có thể áp dụng như trên đường thẳng.
10.1.3.2. Đối với các đoạn đường có bán kính cong < 1000m cột đèn được trồng ở bên lề đường phía ngoài với khoảng giữa các cột thu nhỏ < 0,7l.
10.1.3.3. Nếu l > 1,5h, cần lắp thêm đèn phụ ở phía trong đường cong.
Ghi chú:
l: Bề rộng mặt đường (m)
h: Độ cao lắp đèn (m)
10.2. Để đảm bảo độ đồng đều dọc tuyến, tùy thuộc vào phân bố cường độ sáng của đèn và phương pháp bố trí đèn, tỷ số giữa khoảng cách cột (e) và chiều cao đặt đèn (h) phải thỏa mãn điều kiện ghi trên bảng 35.
Bảng 35
| Hướng I max | Phương pháp bố trí đèn | e/h max |
| 0-750
0-650 |
Một bên hoặc hai bên đối xứng
Hai bên so le Một bên hoặc hai bên đối xứng Hai bên so le |
3,5
3,2 3,0 2,7 |
- Việc tính toán, thiết kế chiếu sáng, đòi hỏi có độ chính xác cao nên sẽ được thực hiện trên máy vi tính với các phần mềm chuyên biệt
PHỤ LỤC B : Phương pháp kiểm tra chiếu sáng các công trình
10.2 Kiểm tra độ rọi
Độ rọi các bề mặt được chiếu sáng được đo bằng may đo độ rọi (luxmeter), phương pháp đo được quy định theo tiêu chuẩn TCVN 5176:1990
Đối với chiếu sáng đường, đường phố : Độ rọi trung bình trên mặt đường được đo tại khu vực mặt đường giới hạn giữa 2 cột đèn ở cùng một hàng. Các điểm đo kiểm tra độ rọi là tập hợp lưới điểm được xác định như trên sơ đồ trong mục 10.2. Đầu đo độ rọi đặt tại các điểm đã xác định trên mặt đường hoặc cách mặt đường không quá 0,20 m
Độ rọi trung bình là giá trị trung bình số học của các giá trị đo tại các điểm.
Độ đồng đều chung được tính bằng tỷ số giữa giá trị độ rọi nhỏ nhất và độ rọi trung bình.
10.3 Kiểm tra độ chói
Độ chói do các bề mặt phát sáng trực tiếp hoặc mặt phát sáng thứ cấp phải được đo đạc bằng máy đo độ chói (luminancemeter)
Đối với chiếu sáng đường, đường phố : Độ chói trung bình được đo tại khu vực mặt đường giới hạn giữa 2 cột đèn ở cùng một hàng. Máy đo độ chói phải đặt ở vị trí cách xa khu vực xác định các điểm đo 60 m. Các điểm đo kiểm tra độ chói là tập hợp lưới điểm được xác định như chỉ dẫn trên sơ đồ Hình –

Các ký hiệu trên sơ đồ được diễn giải như sau:
1 – Mép làn đường
2 – Đèn đường đầu khu vực đo
3 – Khu vực kiểm tra độ chói
4 – Vạch giữa làn đường
5 – Đèn đường cuối khu vực đo
6 – Hướng quan sát
7 – Vạch giới hạn khoảng cách đặt máy đo độ chói
x – Các điểm đo độ chói
D – Khoảng cách giữa các điểm đo theo chiều dọc đường, m
S – Khoảng cách giữa các đèn trong cùng một hàng, m
d – Khoảng cách giữa các điểm đo theo chiều ngang, m
WL – Chiều rộng làn đường, m
Khoảng cách giữa các điểm đo được xác định như sau:
- a) Theo chiều dọc đường
D = S/N
Trong đó N số điểm đo theo hàng dọc được xác định như sau:
Với S ≤ 30 m, N = 10
S > 30m khoảng cách nhỏ nhất giữa các điểm đo D ≤ 3m.
Hàng ngang ngoài cùng của lưới điểm đo cách mép khu vực đo một khoảng bằng D/2.
- b) Theo chiều ngang đường
d = WL /3
Số điểm theo chiều ngang mỗi làn đường ít nhất là 3 điểm, khoảng cách nhỏ nhất giữa các điểm đo d ≤ 1,5m
Hàng dọc ngoài cùng của lưới điểm đo cách mép làn đường một khoảng bằng d/2
Độ chói mặt đường trung bình là giá trị trung bình số học của các giá trị độ chói đo tại các điểm.
Độ đồng đều chung được tính bằng tỷ số giữa giá trị độ chói nhỏ nhất và độ chói trung bình.
Độ đồng đều theo chiều dọc được tính bằng tỷ số giữa giá trị nhỏ nhất và giá trị lớn nhất của độ chói theo trục dọc của mỗi làn đường.
10.4 Kiểm tra độ tăng ngưỡng TI
Độ tăng ngưỡng TI do chói loá được kiểm tra bằng phương pháp tính toán theo công thức sau:
TI = 65 (Lv/ Ltb0,8)
Lv = 10 (Eieye /θi2)
Trong đó: TI – Độ tăng ngưỡng (%)
Lv – Độ chói màng mờ, cd/m2
Ltb – Độ chói trung bình mặt đường, cd/m2
Eieye – Độ rọi đứng tại mắt người quan sát do đèn thứ i chiếu tới, lx
θi – Góc giữa hướng nhìn và hướng chiếu từ đèn i đến mắt người quan sát
10.5 Phương pháp xác định mật độ công suất.
Số lượng đèn được xác định theo công thức sau:

Trong đó:
S – Diện tích mặt bằng được chiếu sáng
Etc – Độ rọi tiêu chuẩn yêu cầu cần bảo đảm
fd – Quang thông của đèn sử dụng trong thiết kế
h – Hiệu suất của đèn sử dụng
U – Hệ số sử dụng quang thông của hệ thống đèn chiếu sáng
MF – Hệ số duy trì quang thông của đèn.
+ Các thông số h, MF, U do nhà sản xuất cung cấp trong các Catalog hoặc tài liệu kỹ thuật của các đèn.
+ Công suất chiếu sáng được tính bằng tổng công suất của các đèn sử dụng
Pt = Nđ .Pđ (W)
Trong đó:
Pt – Tổng công suất của hệ thống chiếu sáng
Nđ – Số lượng đèn sử dụng
Pđ – Công suất của mỗi đèn bao gồm công suất của bóng đèn và chấn lưu
+ Mật độ công suất chiếu sáng:

Sử dụng chỉ tiêu mật độ công suất cho phép người thiết kế chiếu sáng nhanh chóng xác định được
gần đúng tổng công suất các đèn cần thiết để chiếu sáng cho một khu vực cần chiếu sáng đảm bảo các chỉ tiêu định lượng độ chói, độ rọi mà tiêu chuẩn đòi hỏi.
DANH MỤC TÀI LIỆU THAM KHẢO
- QCVN 01:2008/BXD – Quy chuẩn quốc gia về quy hoạch xây dựng.
- QCVN 07-4:2016/BXD – Quy chuẩn quốc gia về các công trình hạ tầng kỹ thuật/Công trình giao thông.
- QCVN 07-5:2015/BXD – Quy chuẩn kỹ thuật quốc gia về công trình cấp điện.
4.QCVN 07-7:2016/BXD – Quy chuẩn quốc gia về các công trình hạ tầng kỹ thuật/Công trình chiếu sáng.
5.TCXDVN 104:2007 – Đường đô thị: Yêu cầu thiết kế.
6.TCVN 4400:1987 – Kỹ thuật chiếu sáng- Thuật ngữ và định nghĩa.
- TCVN 259:2001 – Tiêu chuẩnthiết kế chiếu sáng nhân tạo đường, đường phố, quảng trường đô thị.
8.TCVN 333:2005 – Tiêu chuẩn thiết kế chiếu sáng nhân tạo bên ngoài các công trình xây dựng.
9.TCVN 7447-2011- Hệ thống lắp đặt điện hạ áp.
10.TCVN 1-2 : 2008, Phần 2: Hướng dẫn về trình bày và thể hiện nội dung Tiêu chuẩn Quốc tế.
11.Тищенко Г.А. Осветительные установки. Москва.1984
12.JISC 8105-2-1: Thiết bị chiếu sáng – Phần 1:Quyđịnh chung về các yêu cầu an toàn.13.JIS C 8105-2-3: Thiết bị chiếu sáng – Phần 2-3: Quy định về các yêu cầu an toàn liên quan đến thiết bị chiếu sáng đường phố.
- JIS C8105-3:Thiết bị chiếu sáng – Phần 3: Quy định chung về các yêu cầu tính năng.
15.JIS C8131: Thiết bị chiếu sángđường.
16.JIS C 8155: Mô-đun LED dùng chiếu sáng chung- Quy định về cácyêu cầu tính năng.
17.BS 5489-2:2016. Code of practice for the design of road lighting – Part 2: Lighting of tunnels. (Tiêu chuẩn thực hành chiếu sáng đường. Phần 2: chiếu sáng đường hầm).
18.CIE 88:2004. Guide for the lighting of road tunnels and underpasses. (CIE. Chỉ dẫn chiếu sáng đường hầm và lối đi ngầm).
19.CIE 115:2010 – Lighting of roads for motor and pedestrian traific (CIE. Chiếu sáng đường cho xe cơ giới và người đi bộ).
20.(British standard BS 5489: Road lighting – Part 1. Guide to the general principle)- Chiếu sáng đường giao thông – Phần 1. Hướng dẫn các nguyên tắc chung.
21.(British standard BS 5489: Road lighting – Part 3. Code of practice for lighting for subsidiary roads and associated pedestrian areas)- Chiếu sáng đường giao thông – Phần 3. Hướng dẫn thực hành chiếu sáng các đường phụ trợ và các khu đi bộ liền kề.
- (British standard BS 5489: Road lighting – Part 9. Code of practice for lighting for urban centres and public amenity areas) – Chiếu sáng đường giao thông – Phần 9. Hướng dẫn thực hành chiếu sáng các khu trung tâm đô thị và khu công cộng.
- (Japanese industrial Standard JIS Z 9110: 1979 – Recommended level of illumination)- Khuyến cáo mức độ chiếu sáng.
- (Japanese industrial Standard JIS Z 9120: 1995 – Lighting for outdoor tennis courts and outdoor baseball fields) – Chiếu sáng các sân quần vợt và sân bóng chày ngoài trời.
- (Japanese industrial Standard JIS Z 9121: 1997 – Lighting for outdoor tracks and fields, outdoor soccer fields and rugby fields) – Chiếu sáng các sân vận động đa chức năng, sân bóng đá và sân bóng bầu dục ngoài trời.
- (Japanese industrial Standard JIS Z 9123: 1997 – Lighting for outdoor, indoor swimming pools) – Chiếu sáng các bể bơi ngoài trời và bể bơi trong nhà.
27.(illuminating engineering society of North america – Recommended practice for Sports and Recreational area lighting) – IES – Hiệp hội kỹ sư chiếu sáng Bắc Mỹ – Khuyến cáo thực hành chiếu sáng các khu thể thao và khu giải trí.
28.LG6 : 1992 – (Lighting guide – The outdoor environment) Hướng dẫn chiếu sáng không gian xung quanh.
PV


